登录 注册 课程介绍 课程目录 课程评价
课程适合对象:
1、有Revit基础操作的同学
2、想学习MEP建模及工作流程的同学
课程授课软件版本:
Revit三合一版本2016,除了课件你用低版本打不开外,从知识角度去学习低版本也没有任何问题
适合版本为:2012~2016
课程深度:
课程需要对你Revit有基础的操作认识,课程以流程体验基础知识带你认识MEP,以小案例带你领略MEP的工作流程模式!
课程目录:
01 Revit MEP软件说明
02 Revit MEP可以做哪些事情?
03 如何选择项目建模方式?
04 如何选择默认自带项目样板?
05 Revit MEP软件界面简单说明及一些常见问题
06 Revit MEP常用建模流程
07 流程体验:创建项目、风管设置
08 流程体验:链接建筑文件及显示设置
09 流程体验:创建标高及视图
10 流程体验:设置视图组织及规程
11 流程体验:布置设备
12 流程体验:绘制项目风管及设置系统类型(送风)
13 流程体验:绘制项目风管及设置系统类型(回风)
14 流程体验:绘制项目风管及设置系统类型(新风)
15 流程体验:添加视图过滤器
16 流程体验:添加风管图例
17 课程总结
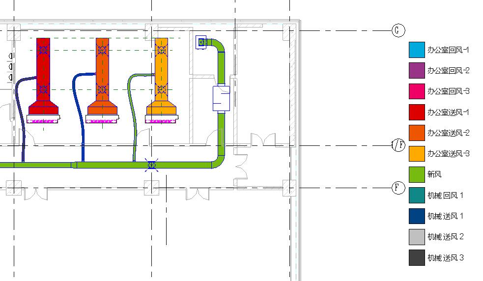
课程截图:


- 章节 章节时长
- 01 Revit MEP软件说明 00:08:30
- 02 Revit MEP可以做哪些事情 00:10:01
- 03 如何选择项目建模方式? 00:06:21
- 04 如何选择默认自带项目样板? 00:04:56
- 05 Revit MEP软件界面简单说明及一些常见问题 00:17:55
- 06 Revit MEP常用建模流程 00:09:44
- 07 流程体验:创建项目、风管设置 00:10:09
- 08 流程体验:链接建筑文件及显示设置 00:07:24
- 09 流程体验:创建标高及视图 0:09:28
- 10 流程体验:设置视图组织及规程 00:14:09
- 11 流程体验:布置设备 00:14:54
- 12 流程体验:绘制项目风管及设置系统类型(送风) 00:18:55
- 13 流程体验:绘制项目风管及设置系统类型(回风) 00:06:30
- 14 流程体验:绘制项目风管及设置系统类型(新风) 00:10:51
- 15 流程体验:添加视图过滤器 00:10:46
- 16 流程体验:添加风管图例 00:05:41
- 17 课程总结 00:06:49